Iroda-üzlet-vendéglátóegység eladó közvetítőtől – Miskolc
Áttekintés
- Kategória: Egyéb ingatlan
- Hirdető neve: Hausel László
- Elhelyezkedés: Belföldi ingatlan
- Alapterület (m2): 459
- Kitől: Közvetítőtől
- Weboldal
Leírás
Eladó emeltszintű szerkezetkész iroda irodaházban Miskolc Belváros
Miskolc belvárosában, a Pátria szolgáltató házban, I. emeleti 459 m2 üzlethelyiség ELADÓ!!
iroda ingatlanhirdetés
Miskolc belvárosában, a Pátria szolgáltató házban, I. emeleti 459 m² üzlethelyiség ELADÓ!!
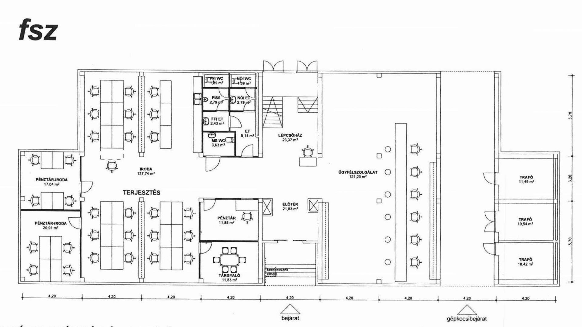
Az ingatlan jelenleg 10 irodából, tárgyalóból, konyhából, vizesblokkokból álló irodahelyiség.
Az irodaház földszinti részen üzletek, étterem, gyógyszertár, találhatóak.
A frekventált belvárosi elhelyezkedés ideális az ingatlan funkciójához, mivel a város jelentős gyalogos forgalma itt halad el a belváros egyetlen villamos vonalával együtt. A gépjármű és teherforgalom is megoldott a Kossuth L. út felől, ahol nagyméretű, fizetős parkoló fekszik.
Az épület szomszédságában hasonló jellegű üzletek és szolgáltatók működnek, melyek nagy forgalmat bonyolító bankok, biztosítók.
Műszaki adatok:
– Az ingatlan kialakítása 5,4 m x 5,4 m rács kiosztású betonoszlopos, melyek között könnyűszerkezetes elválasztó falak lettek kialakítva, ezért a jelenlegitől eltérő egyéb alternatív hasznosítása kiváló.
– A nyílászárók alumínium szerkezetűek.
-A falak festettek, a burkolat járólap és padlószőnyeg vegyesen.
– Az épület a városi távhő szolgáltatással fűtött.
A frekventált elhelyezkedés, és jól alakítható, újszerű belső terek páratlan lehetőségeket kínálnak az egyéb üzleti célok megvalósítására.
Irányár: 220.000.000.ft + ÁFA
Ha az ingatlan felkeltette az érdeklődését, hívjon bizalommal!
(hivatkozási szám: M115877)
Ha érdekli az ingatlan, további képeket weboldalunkon láthat. Az ingatlan azonosítója: 115877





You must be logged in to post a review.